Bedrijven- en dienstencentrum
Startpunt Joure
Bedrijven- en dienstencentrum Startpunt biedt sinds de uitbreiding (medio 2002) een representatief gebouwencomplex dat bestaat uit:
De productie- en handelsruimtes zijn per unit van 112,5m2 voorzien van een telefoonaansluiting (ISDN, dit geldt niet voor de hallen 8/9, 10 en 11), een pantry en een toilet (de hallen 8/9, 10 en 11 hebben geen pantry maar alleen een toilet. De hallen beschikken niet over eigen nutsaansluitingen. Er is sprake van een tussenmeter electra; maandelijks wordt een voorschot gevraagd en 1x per jaar vindt een afrekening plaats. Gas is op aanvraag en water tot een verbruik van 25 m3 zit in de huurprijs.
In de constructie is rekening gehouden met het feit dat u zelf kunt zorgen voor uitbreiding van de oppervlakte door een zolder te (laten) plaatsen halverwege de vrije hoogte van ca. 6 meter.
Dit kan het snelst en meest bruikbaar gerealiseerd worden in het eerste gedeelte van de hal boven de entree en de pantry. U krijgt dan een extra oppervlakte van ruim 22 m2 voor bijvoorbeeld een inpandig kantoortje of opslag.
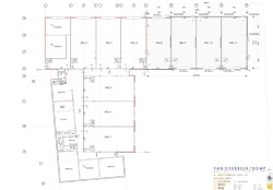
De units 2 t/m 7 zijn vanuit het pand bereikbaar via een normale toegangsdeur; de units 8/9, 10 en 11 via een buitendeur. Alle units zijn toegankelijk via een royale overheaddeur van 4 x 4 meter met ramen.
Technische gegevens productie-/handelsruimten:
| Oppervlakte begane grond | 15 x 7,5 | = 112,5 m2 |
|---|---|---|
| Oppervlakte zolder | 3 x 7,5 | = 22,5 m2 (naar wens zelf aan te brengen, zie boven) |
| Vrije hoogte | ca. 6 meter | |
| Draagvermogen vloer | 1.500 kg per m2 | |
| Vloer vloeistofdicht | ja | |
| Parkeerplaats | 2 per unit | |
| Elektra | aanwezig in de unit | vermogen 380V - 25 Ampère, eigen meter vermogen 220V - 16 Ampère, eigen meter |
| Gas | op aanvraag te verkrijgen | gasdruk 25 millibar, eigen meter |
| Water | aanwezig in de unit | in de huurprijs begrepen |
| Telefoon | aansluitpunt aanwezig in de unit (ISDN), aansluiting zelf aan te vragen | |
| Verwarming | aansluitpunt aanwezig in de unit, naar wens zelf aan te brengen | |
| Ventilatie | natuurlijke | |
De vijf kantoorruimten hebben verschillende oppervlaktes. Er zijn twee units van 36 m2, één van 42 m2, één van 54 m2 en de grootste is 112,5 m2. Laatstbedoelde ruimte was van oorsprong een productieruimte. De representatieve ruimten worden standaard opgeleverd met systeemplafonds en systeemverlichting. Huurt u een van deze ruimten dan kunt u gebruik maken van de centrale toiletruimte en de garderobe.
Voor de buitenzijde van de kantoorruimten is gebruik gemaakt van een zeer representatieve, moderne bouwmethode die borg staat voor een opvallende uitstraling. Deze bouwwijze levert een gladde gevel op die in een kleur is gestukadoord. Er is gekozen voor een heldere gele kleur, zodat gecombineerd met de antracietgrijze productieruimten een opvallend en fraai geheel is onstaan. Een echte blikvanger.
De kantoorruimtes zijn zeer licht omdat per ruimte, afhandelijk van de ligging, twee of vier grote ramen worden geplaatst.
De kantoorruimten hebben een vrije hoogte van ca. 2,6 meter en zijn vanuit het pand bereikbaar via een normale deur.
Alle kantoorruimtes kunt u ook huren tegen flexibele voorwaarden en met tijdelijke contracten.
Technische gegevens dienstenruimten:
| Bruto vloeroppervlak | unit A: 6,00 x 7,00 = 42 m2 unit B: 6,00 x 6,00 = 36 m2 unit C: 6,00 x 9,00 = 54 m2 unit D: 7,45 x 4,94 = 36 m2 unit E: 6,90 x 6,15 = 42 m2 |
|---|---|
| Vrije hoogte | ca. 2,6 m |
| Parkeerplaats | 2 per unit |
| Elektra | vermogen 220V - 16 Ampère, centrale meter |
| Gas | niet standaard aanwezig in de ruimte |
| Water | niet standaard aanwezig in de ruimte |
| Telefoon | aansluitpunt aanwezig in de unit (ISDN), aansluiting zelf aan te vragen |
| WiFi | beschikbaar |
| Verwarming | centrale verwarming (radiatoren) |
| Ventilatie | natuurlijke en mechanische |



Copyright © 2010 Stichting Startpunt | Alle rechten voorbehouden
Ontwerp & Realisatie: Lakesight ICT